Ir al contenido
Inicio
Nuestros Proyectos
Contacto
X
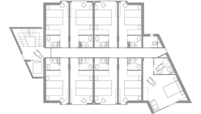
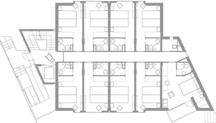
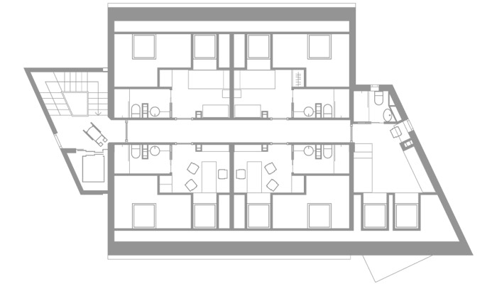
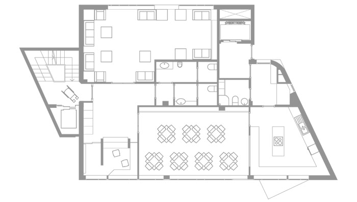
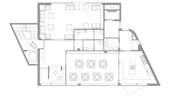
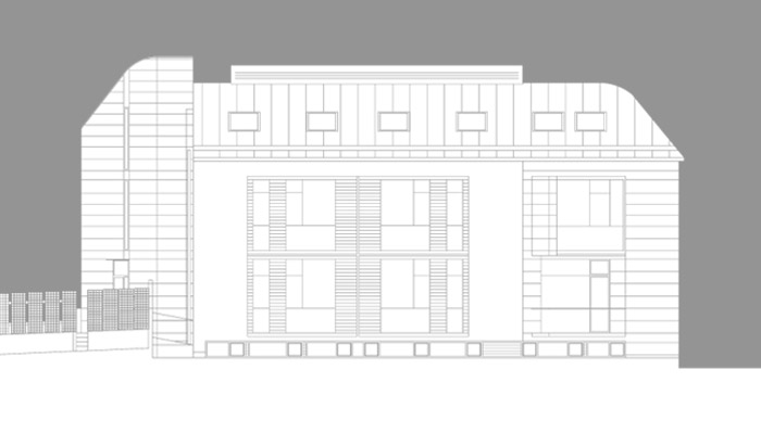
Hotel Rosa Rosae